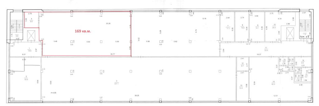
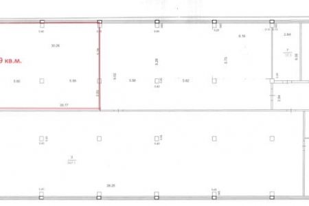
Оренбург, пер. Скорняжный, 12/1 Этаж:4
Предлагаем в аренду теплое производственное помещение
Помещение светлое, большие окна с выходом на внутреннюю парковку базы.
Имеется собственная газовая котельная
Имеется грузовой лифт.
Высота потолка – 4,5 м.
Полы бетонные. Шаг колонны 6х6м.
Возможность подключения высокоскоростного интернета, телефонии (ТТК, ФокусЛайф)
Круглосуточная физическая охрана.
Установлена система видеонаблюдения по периметру базы, система охранно-пожарной сигнализации.
Парковка возле здания до 30 машиномест.
Удобные подъездные пути к базе, в т.ч. для фур